Του Κωνσταντίνου Κοντοκώστα
Με τον ορισμό την περασμένη Τρίτη της αίθουσας όπου θα διεξαχθεί η μεγάλη δίκη για το σιδηροδρομικό δυστύχημα στα Τέμπη, έκλεισε ακόμα μια εκκρεμότητα στο δρόμο για την πρώτη δικάσιμο στις 23 Μαρτίου του 2026.
Το θέμα εύρεσης της κατάλληλης αίθουσας για την διεξαγωγή της δίκης άρχισε να απασχολεί τις δικαστικές αρχές μετά το πρώτο εξάμηνο της ανάκρισης όταν διαπιστώθηκε πως οι διάδικοι θα φτάσουν σε τριψήφιο αριθμό. Μάλιστα ο πρώτος που δημοσίως είχε θέσει το ζήτημα της αίθουσας ήταν ο συνήγορος οικογενειών τραυματιών κ. Λουκάς Αποστολίδης κατά την επίσκεψή του στον εφέτη ανακριτή στις 25 Οκτωβρίου του 2023.

Στο Δικαστικό Μέγαρο Λάρισας η μεγαλύτερη αίθουσα είναι αυτή του Εφετείου/αίθουσα τελετών όπου υπάρχουν περίπου 120 θέσεις για το κοινό, ένας αριθμός που σε καμία περίπτωση δεν θα μπορούσε να εξυπηρετήσει τις ανάγκες της συγκεκριμένης δίκης. Το θέμα της αίθουσας μάλιστα είχε απασχολήσει την τελευταία δεκαετία σε μεγάλες δικαστικές υποθέσεις οπως την δίκη της Χρυσής Αυγής και της φωτιάς στο Μάτι.

Έτσι λοιπόν αναζητήθηκε αλλού χώρος και αυτός βρέθηκε στο campus του Πανεπιστημίου Θεσσαλίας “ΓΑΙΟΠΟΛΙΣ” (πρωην ΤΕΙ Λάρισας). Συγκεκριμένα επιλέχθηκε η αίθουσα του Συνεδριακού Κέντρου η οποία βρίσκεται στην είσοδο του συγκροτήματος και μεσοτοιχία με την φοιτητική λέσχη. Το σχετικό ΦΕΚ για την επιλογή της αίθουσας δημοσιεύθηκε τον Μάρτιο του 2024.
Η διαμόρφωση
Αφού εντοπίστηκε ο χώρος και η αίθουσα, ξεκίνησε η διαμόρφωση της. Μέσα σε περίπου δύο χρόνια δαπανήθηκαν ποσά από το Ταμείο Χρηματοδοτήσεως Δικαστικών Κτιρίων προκειμένου ο χώρος να προσομοιάζει σε μια σύγχρονη δικαστική αίθουσα. Υπογράφηκαν συμβάσεις για υλικοτεχνικό εξοπλισμό, τραπέζια και καθίσματα τα οποία φτάνουν για 250 άτομα.

Από τον Ιούλιο του 2023 ξεκινά να διαμορφώνεται και ο εξωτερικός χώρος με την τοποθέτηση περιμετρικά περίφραξης ενώ αναμένεται να τοποθετηθούν τρία φυλάκια και κάγκελα. Πρόσφατα δημοσιεύθηκε από το Εφετείο Λάρισας ανάθεση εργασιών ύψους 12.350,40 € σε εταιρεία Security για την προμήθεια υλικών τοποθέτησης συστήματος βιντεοεπιτήρησης, για τις ανάγκες της δίκης.
Ο ορισμός
Την Τρίτη με την υπ’ αριθ. 253/2025 πράξη της Διευθύνουσας το Εφετείο Λάρισας, Προέδρου Εφετών, ορίστηκε η αίθουσα συνεδριάσεων (ακροατήριο) για την εκδίκαση της υπόθεσης που αφορά το δυστύχημα των Τεμπών της 28-2-2023.
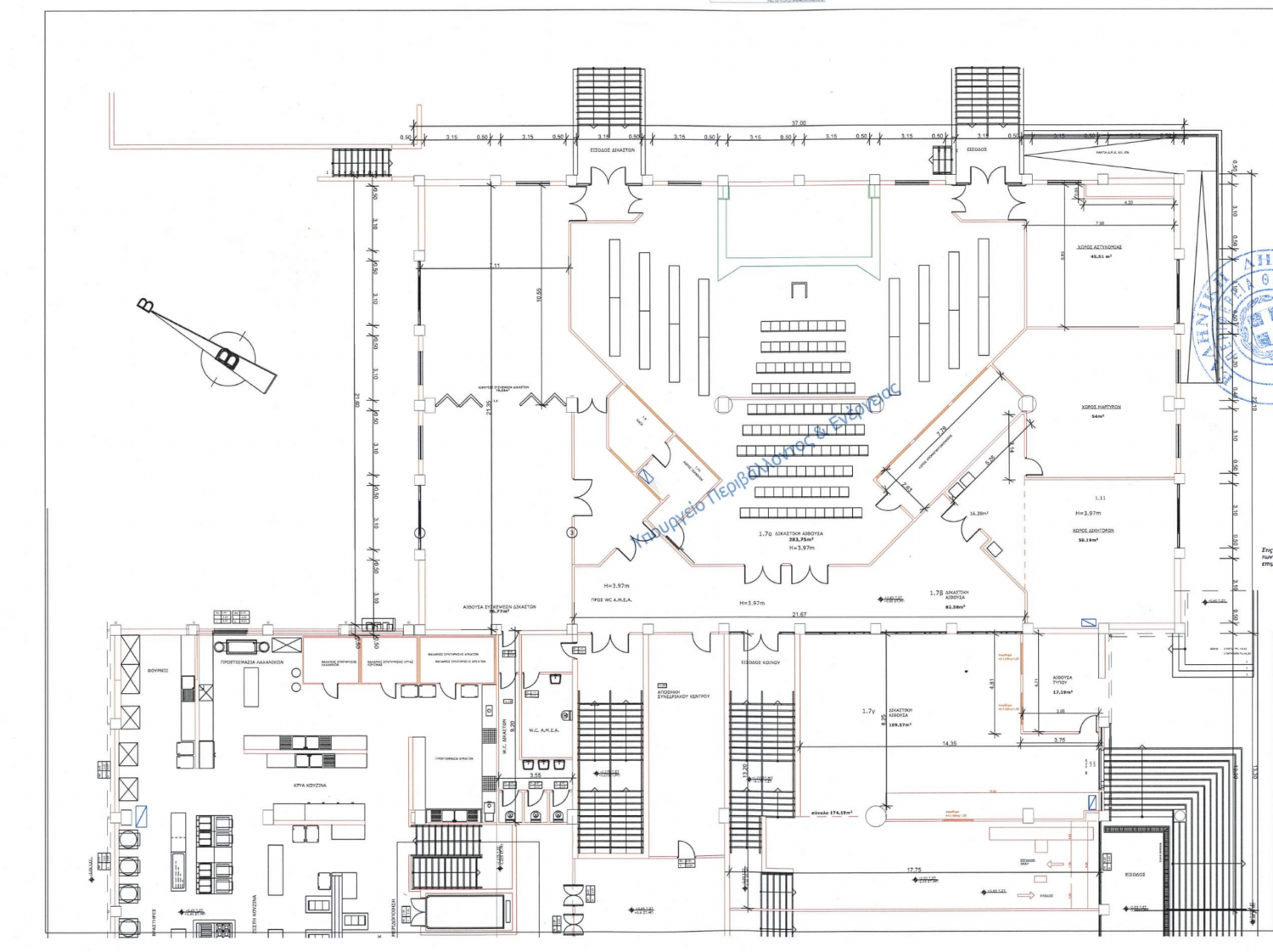
Με την πράξη αυτή στην ουσία δόθηκε το “πράσινο φως” για την διεξαγωγή της δίκης στο Συνεδριακό Κέντρο το οποίο με βάση την κάτοψη του κτιρίου που δημοσιεύθηκε μαζί με την πράξη, έχει διαμορφωθεί σε επιμέρους τμήματα για δικαστές, ακροατήριο, δημοσιογράφους, κτλ.

Η “καρδιά” του κτιρίου που είναι η δικαστική αίθουσα αναπτύσσεται σε 283,75 τμ. ενώ ορίζεται και επιπρόσθετος χώρος για το ακροατήριο.
Στην πράξη αναφέρεται αναλυτικά πως το γεγονός ότι, για τη διεξαγωγή της δίκης αυτής, λόγω της φύσεώς της, θα απαιτηθεί ικανός αριθμός συνεδριάσεων, ενώ είναι μεγάλος ο αριθμός των διαδίκων, των δικηγόρων και των μαρτύρων ορίζεται ως αίθουσα συνεδριάσεως (ακροατήριο), για την εκδίκαση της υπόθεσης του δυστυχήματος των Τεμπών που έχει προσδιοριστεί να συζητηθεί την 23η Μαρτίου 2026, ημέρα Δευτέρα, ενώπιον του Τριμελούς Εφετείου Κακουργημάτων Λάρισας (Α΄ Βαθμού), την αίθουσα διαλέξεων του Συνεδριακού Κέντρου του Πανεπιστημίου Θεσσαλίας στο συγκρότημα «ΓΑΙΟΠΟΛΙΣ» (πρώην Τ.Ε.Ι. Λάρισας), εμβαδού 283,75 τ.μ., όπου θα εγκατασταθεί η έδρα του Δικαστηρίου, τα έδρανα των δικηγόρων, καθώς και οι θέσεις των κατηγορουμένων κλπ Ως επιπρόσθετη αίθουσα συνεδριάσεως (ακροατήριο) για την εκδίκαση της ως άνω υποθέσεως: α) τον εκ δεξιών της εισόδου κύριο χώρο υποδοχής του ανωτέρω Συνεδριακού Κέντρου, εμβαδού 109,57 τ.μ., όπου θα εγκατασταθούν θέσεις ακροατηρίου με οθόνες και β) τον χώρο φουαγιέ του Συνεδριακού Κέντρου, εμβαδού 82,58 τ.μ., όπου επίσης θα εγκατασταθούν θέσεις ακροατηρίου με οθόνες.
Πηγή: ΕΝΤΥΠΗ LARISSANET
Ακολουθήστε το στο Google News και μάθετε πρώτοι όλες τις ειδήσεις.
























